So we need a building permit to insulate the basement. Not a big deal but the square footage cost for the insulation is much lower than the minimum permit fee. Thus, us being cheap-os has led us to the conclusion that we should try to pack as much of what we have planned for the next year into this building permit to save fees over the course of the renovation.
We have decided not to get our upstairs bathroom renovated professionally. Again, as cheap-os we couldn't get comfortable with the size of the bill that would entail. Plus we have no deadline (like we do with energy renos) other than wanting to have a shower when we move in. So now we think we'll rig something up there to have a shower (something like this plus this). Once that is done we'll have some time to work on getting the bathroom renovated properly.
That said we like the idea of having a basement bathroom available so that we don't need to renovate a single bathroom while we need to be using it. So, back to the permit conundrum. If we want to put in the basement bathroom in a reasonably short time frame we should try and make it part of this permit. But that means we need to decide what it will look like. So here are the three current ideas about how to make that happen.
![]() |
| Option 1 - Large Laundry, Separate Bath and Existing Den |
![]() |
| Option 2 - Small Laundry and Smaller Bath, Large Den |
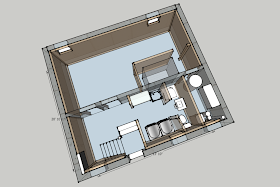
![]() |
| Option 3 - Combined Laundry and Bath, Large Den |
Trade offs in space is one of the biggest issues. Option 1 has the bathroom in a more convenient location but eats a lot of space. Option 2 is the most compact (a positive or negative). Option 3 has a dual purpose room and is more open (again a positive or negative).
Anyways, thoughts please everyone.



I like # 3 the best. :)
ReplyDeleteThanks, Megan!
DeleteI should mention too that, in this option, we would probably build some sort of cabinet around the laundry pair and maybe even the sink so you're not staring at a washing machine while doing your business.
Keep the den big, if you can. As a second bathroom, luxurious size isn't really on the radar for me. People will be happy it exists at all, even if it's smaller. So a toss up between 2 and 3 for me.
ReplyDelete